 
        Входит в технологические процессы газовой, нефтяной, нефтеперерабатывающей и др. отраслях промышленности, связанных с хранением, транспортировкой жидких и газо-образных средств под давлением, а также сыпучих продуктов.
Емкостное оборудование является главной составляющей технологического процесса во многих отраслях промышленности, связанных с хранением, транспортировкой жидких и газообразных продуктов под давлением, а также сыпучих продуктов.
Технические характеристики ГС-1
| Диаметр внутренний | Давление условное, МПа | Объем, м³ рабочий | Объем, м³ номинальный | Поверхность нагрева, м² | Масса, кг | 
|---|---|---|---|---|---|
| 600 | 2,5(25) | 0,27 | 0,80 | 0,80 | 850 | 
| 4,0(40) | 1150 | ||||
| 6,4(64) | 1600 | ||||
| 8,8(88) | 2100 | ||||
| 800 | 1,6(16) | 0,50 | 1,60 | 1,18 | 1150 | 
| 2,5(25) | 1300 | ||||
| 4,0(40) | 1900 | ||||
| 6,4(64) | 3000 | ||||
| 8,8(88) | 4000 | 
Технические характеристики ГС-2
| Диаметр внутренний | Давление условное, МПа | Объем, м³ рабочий | Объем, м³ номинальный | Поверхность нагрева, м² | Масса, кг | 
|---|---|---|---|---|---|
| 1200 | 1,0(10) | 1,3 | 4,0 | 1,4 | 850 | 
| 1,6(16) | 1150 | ||||
| 2,5(25) | 1600 | ||||
| 4,0(40) | 2100 | ||||
| 2000 | 1,0(10) | 4,2 | 16,0 | 3,0 | 4950 | 
| 1,6(16) | 6200 | ||||
| 2,5(25) | 8100 | ||||
| 4,0(40) | 11100 | ||||
| 6,4(64) | 17400 | 
Наименование
Cепараторы газовые типа ГС1 и ГС2 по ОСТ26-02-2059-79. Условное обозначение ГС1-1,6-1200-2.
Назначение
Cепараторы газовые предназначены для окончательной очистки природного и попутного газа от жидкости в промысловых установках подготовки к транспорту, в подземных хранилищах, а также газо — и нефтеперерабатывающих заводах.
| Технические характеристики | |||
| Диаметр внутренний, мм | Давление, МПа | Температура, °С | Среда | 
| 600 … 2000 | 0,6 … 6,3 | -30 … +100 | Газ, конденсат | 
Устройство деаэратора атмосферного давления включает в себя деаэрационную колонку (основной рабочий элемент), бак (для сбора деаэрованной воды), охладитель выпара, а также гидрозатвор.
| Обозначение | Рабочее давление, МПа | Произв-ть, т/ч | Высота, мм | Масса, кг | 
|---|---|---|---|---|
| ДА-5/2 | 0,12 | 5 | 3615 | 1380 | 
| ДА-15/4 | 0,12 | 15 | 3645 | 1735 | 
| ДА-25/8 | 0,12 | 25 | 3930 | 3030 | 
| ДА-50/15 | 0,12 | 50 | 4390 | 4620 | 
| ДА-100/25 | 0,12 | 100 | 4635 | 6660 | 
Назначение
Предназначены для удаления корозионно-агрессивных газов (кислорода и углекислого газа) из питательной воды паровых котлов и подпиточной воды систем горячего водоснабжения.
| Технические характеристики | |||||||||||||||
| Наименование | БДА | КДА | ДА | ОВА | Масса, кг | ||||||||||
| D мм | L мм | H мм | I мм | I1 мм | d мм | h мм | d1 мм | h1 мм | d2 мм | h2 мм | БДА | КДА | ОВА | ДА | |
| ДА-5/2 | 1200 | 2950 | 1750 | 1000 | 500 | 530 | 1950 | 400 | 6000 | 325 | 1500 | 1045 | 210 | 232 | 240 | 
| ДА-15/4 | 1200 | 4450 | 1750 | 2400 | 550 | 530 | 1950 | 400 | 6000 | 325 | 1500 | 1336 | 210 | 212 | 240 | 
| ДА-25/8 | 1600 | 5200 | 2500 | 2870 | 565 | 820 | 2100 | 400 | 6000 | 325 | 1500 | 2500 | 370 | 232 | 240 | 
| ДА-50/15 | 2000 | 6200 | 2700 | 3460 | 670 | 1020 | 2220 | 600 | 6000 | 325 | 1500 | 3600 | 647 | 232 | 400 | 
| ДА-100/25 | 2000 | 8100 | 2980 | 4560 | 1000 | 1200 | 2220 | 700 | 6330 | 426 | 1890 | 4763 | 860 | 472 | 682 | 
| Технические данные | |||||||||||||||
| Наименование | Бакдеа эраторный | Колонка деаэраторная | Охладитель пара | Предохра нительное устройство | Производи тельность, т/ч | Емкость бака, м3/ч | Площадь теплообмена ОВА, м3 | Рабочее давление, МПа | Температура деаэрированой воды, °C | Давление гидро испытаний, МПа | |||||
| ДА-5/2 | БДА-2 | КДА-5 | ОВА-2 | ДА-25 | 5 | 2 | 2 | 0,12 | 104,25 | 0,3 | |||||
| ДА-15/4 | БДА-4 | КДА-15 | ОВА-2 | ДА-25 | 15 | 4 | 2 | 0,12 | 104,25 | 0,3 | |||||
| ДА-25/8 | БДА-8 | КДА-25 | ОВА-2 | ДА-25 | 25 | 8 | 2 | 0,12 | 104,25 | 0,3 | |||||
| ДА-50/15 | БДА-15 | КДА-50 | ОВА-2 | ДА-50 | 50 | 15 | 2 | 0,12 | 104,25 | 0,3 | |||||
| ДА-100/25 | БДА-25 | КДА-100 | ОВА-8 | ДА-100 | 100 | 25 | 8 | 0,12 | 104,25 | 0,3 | |||||
| Обозначение | Полезный объем, м³ | Высота, мм | Диаметр корпуса, мм | Диаметр патрубков, мм | Масса, кг | 
|---|---|---|---|---|---|
| В-0,5 | 0,5 | 2140 | 600 | 50 | 230 | 
| В-1 | 1,0 | 1810 | 1000 | 65 | 360 | 
| В-1,6 | 1,6 | 2260 | 1000 | 50 | 470 | 
| В-2 | 2,0 | 2860 | 1000 | 100 | 570 | 
| В-3,2 | 3,2 | 3250 | 1200 | 80 | 830 | 
| В-4 | 4,0 | 3855 | 1200 | 150 | 1060 | 
| В-6,3 | 6,3 | 4565 | 1400 | 200 | 1460 | 
| В-8 | 8,0 | 4415 | 1600 | 150 | 1720 | 
| В-10 | 10,0 | 5515 | 1600 | 200 | 2205 | 
| В-16 | 16,0 | 5510 | 2000 | 200 | 2910 | 
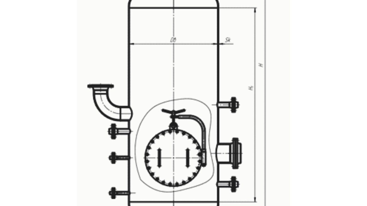
Назначение
Воздухосборники предназначены для сглаживания пульсаций в воздуховодах при работе стационарных поршевых компрессоров общего назначения, а также роторных и создания запаса воздуха.
| Технические характеристики | ||||||||||||
| Наименование | В-0,5 | В-1 | В-1,6 | В-2 | В-3,2 | В-4 | В-6,3 | В-8 | В-10 | В-16 | В-20 | В-25 | 
| V, м3 | 0,5 | 1 | 1,6 | 2 | 3,2 | 4 | 6,3 | 8 | 10 | 16 | 20 | 25 | 
| Py, МПа | 0,78 | 0,78 | 0,78 | 0,78 | 0,78 | 0,78 | 0,78 | 0,78 | 0,78 | 0,78 | 0,78 | 0,78 | 
| D, мм3 | 600 | 800 | 1000 | 1000 | 1200 | 1200 | 1400 | 1600 | 1600 | 2000 | 2000 | 22000 | 
| Sк | 6 | 8 | 10 | |||||||||
| Sд | 6 | 8 | 10 | 8 | 10 | 12 | ||||||
| Н | 2140 | 2380 | 2305 | 2905 | 3205 | 3805 | 4505 | 4415 | 5515 | 5510 | 6805 | 7152 | 
| h | 1500 | 1700 | 1600 | 2200 | 2300 | 3000 | 3000 | 3300 | 4400 | 4200 | 5400 | 5600 | 
| h1 | 1720 | 1800 | 1850 | 2450 | 2500 | 3250 | 3625 | 4800 | 4630 | 5750 | 6000 | |
| h2 | _ | 860 | 900 | 915 | 1000 | 1100 | 1260 | 1370 | ||||
| h3 | 850 | 950 | 1160 | 1200 | 1300 | 1500 | 1600 | 1900 | 2300 | 2600 | ||
| h4 | 1500 | 1600 | 2400 | 2350 | 2650 | 2700 | 2700 | |||||
| h5 | 1730 | 1750 | 1850 | 2500 | 3350 | 2900 | 3000 | |||||
| h6 | _ | 3200 | 3475 | 3500 | 3755 | 3600 | 4000 | |||||
| h7 | 310 | 400 | 410 | 505 | 555 | 650 | 745 | 895 | 910 | |||
| L | 400 | 500 | 600 | 610 | 720 | 830 | 940 | 1150 | 1250 | |||
| L1 | 460 | 560 | 660 | 760 | 720 | 830 | 960 | 1160 | 1260 | |||
| R | 260 | 360 | 460 | 550 | 555 | 630 | 705 | 905 | 1005 | |||
| d | 19 | 24 | 35 | 42 | ||||||||
| *Масса, кг | 260 | 389 | 547 | 655 | 830 | 981 | 1450 | 1655 | 2186 | 3228 | 3600 | 4990 | 
Аппараты и их блоки предназначены для эксплуатации на объектах газовой и нефтяной промышленности. По желанию Заказчика аппараты и блоки могут быть изготовлены с учетом дополнительных требований, указанных в конструкторской документации.
| Производительность по газу, м³/сут. | от 0,5 х 106 до 30 х 106² | 
| Давление расчетное, МПа | от 0,6 до 16,0 | 
| Диаметр аппарата, мм | 600, 1000, 1200, 1400, 1600, 1800, 2000 | 
| Высота аппарата, мм | от 2 000 до 15 000 | 
| Диаметр штуцеров входа-выхода, мм | от 50 до 1 000 | 
Назначение
Аппараты и их блоки предназначены для эксплуатации на объектах газовой и нефтяной промышленности. По требованию Заказчика аппараты и блоки могут быть изготовлены с учетом дополнительных требований, указанных в конструкторской документации.
| Технические характеристики | |
| Производительность по газу, м3/сут. | От 0,5х106 до 30х106 | 
| Давление расчетное, МПа | От 0,6 до 16,0 | 
| Диаметр аппарата, мм | 600; 1000; 1200; 1400; 1600; 1800; 2000 | 
| Высота аппарата, мм | От 2000 до 15000 | 
| Диаметр штуцеров входа-выхода, мм | От 50 до 1000 |